Ir al contenido
+
+
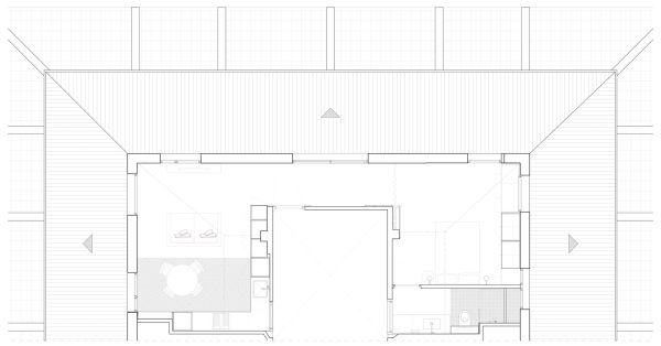
.sobre ático en Donostia-San Sebastián
Ático en Donostia-San Sebastián