.nuevas oficinas de Area Global – Elma
Nuevo centro de operaciones de la empresa Area Global – Elma ubicada en Vitoria-Gasteiz
El presente encargo viene de un gran amigo, gerente de una empresa familiar en crecimiento. El negocio está en auge y necesita aunar en unas únicas oficinas a diferentes empleados así como una empresa de reciente asociación para agilizar el trabajo diario.
Este es un gran punto de inflexión en el que la empresa quiere dar una imagen actualizada, renovada y acorde a los nuevos valores que se han ido creando a lo largo de estos años de trabajo. Paralelamente a este encargo se actualiza la imágen corporativa así como las fachadas y cartelerías de los diferentes pabellones de la empresa.
Además de la practicidad y funcionamiento eficaz de los sistemas que se planteen, se solicita que el espacio sea acorde a los valores fundacionales del negocio así como en los que la empresa lleva tiempo enfocándose. Estos planteamientos iniciales se trasladan tanto al espacio de oficinas, como una de las primeras imágenes que reciben posibles clientes, como a los empleados, con un lugar de trabajo estimulante para tal fin, cómodo y saludable.
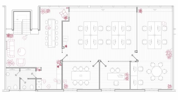
Situación: Vitoria-Gasteiz
Proyecto: 2025 Construcción: 2025
Sup. construida: 300 m2 Autor: tudancaacedo arquitectura












