. albergue de Peregrinos de Mansilla Mayor
Rehabilitación de Las Antiguas Escuelas del Pueblo y conversión en Nuevo Albergue de Peregrinos
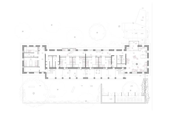
Las fotografías que pueden observar pertenecen a la rehabilitación de Las Antiguas Escuelas para convertirlas en el nuevo Albergue de Peregrinos de Mansilla Mayor. Se rehabilita una antigua edificación del pueblo donde anteriormente se impartían clases para los niños: Las Antiguas Escuelas de Mansilla Mayor. Esta intervención supone un gran reto por el patrimonio simbólico que resulta para los vecinos del pueblo. La necesidad de antaño de la construcción de estas escuelas nació por la voluntad de disponer en el propio municipio de un lugar donde se pudiese impartir la enseñanza. Humilde y voluntariosamente, fueron en muchos casos los propios vecinos los que contribuyeron con sus ahorros o con su propia mano de obra, y consiguieron llevar a cabo la construcción.
No ajena a los cambios en la sociedad, las escuelas quedaron hace tiempo obsoletas y vacías. Todavía guardan entre sus muros el recuerdo de quienes contribuyeron a levantarla, y de los niños y niñas que estudiaron allí.
Recuperar este edificio abandonado, y devolverlo a la vida a través de una nueva actividad, resulta fundamental para su subsistencia. El nuevo uso planteado, de Albergue de Peregrinos del Camino de Santiago, resulta muy coherente con el contexto en el que se ubica, buscando ser una parada más en el Camino, en relación al Monasterio de Sandoval y su alto valor patrimonial. Para Mansilla Mayor supondrá, además, una fuente de actividad y flujo de visitantes, que permitirá generar varios puestos de trabajo no sólo en el propio Albergue, sino también en el Bar San Miguel, situado a pocos metros, que podrá ampliar su horario. De esta manera, la actividad turística de los Peregrinos se integra de manera sinérgica con el día a día del pueblo.
El Anteproyecto plantea la rehabilitación del edificio de manera estratégica, para cumplir con todos los requisitos de confort y eficiencia energética actuales, así como los normativos para el desarrollo de la actividad de Albergue de Peregrinos del Camino de Santiago. La propuesta desarrollada busca, en definitiva, respetar el antiguo edificio, tratando de conservar el valor simbólico que tiene en la memoria colectiva de los vecinos de Mansilla Mayor.
Situación: Mansilla Mayor, León
Proyecto: 2021-2022
Construcción: (en construcción)
Sup. construida: 365 m2 (interior) + 480 m2 (exteriores)
Autores: OCAMICA TUDANCA arquitectos: Iñigo Ocamica Berbois + Iñigo Tudanca Acedo

















